Sign up to get new listings emailed daily! JOIN SIGN IN
Lisa Minder
REALTOR®
Facebook Icon VCard Icon 

8003 Manor House Way, Colorado Springs, CO 80908

$587,935
  • 8003 Manor House Way, Colorado Springs, CO 80908 Main Photo

5 Total Photos [Click to View All]

New to the Market Active
BEDS3 BATHS3 SQUARE FEET2,256 MLS#7690897
STATUSActive PROPERTY TYPEResidential - Single Family SUBDIVISIONSterling Ranch

Property Description

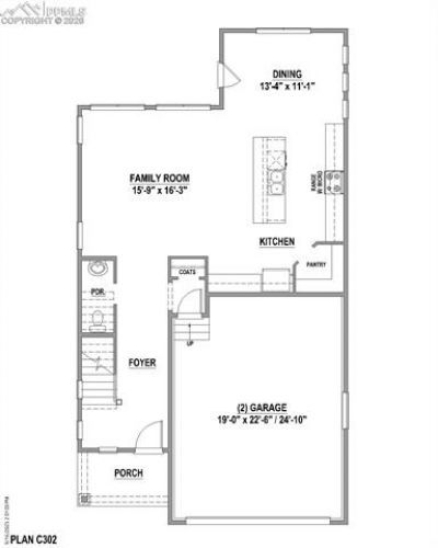
This stunning 2,255 sf home combines elegance and functionality in every detail. This home features a welcoming front porch, perfect for relaxing. Lots of curb appeal, a rear covered patio and a 2-car garage with an 8' door and garage opener, providing ample storage and much convenience. Inside, the open and bright floor plan creates a welcoming atmosphere, with a main level that includes a half bath, formal dining and a beautifully designed and upgraded kitchen that flows effortlessly into the family room ideal for both everyday living and entertaining. Upstairs, you'll find a loft or game area perfect for relaxation or play. The primary bedroom suite is a private retreat, featuring a well-appointed bath. This plan also offers two more bedrooms, and a full bath, and a conveniently placed laundry room, making this home the perfect balance of comfort and versatility. You will agree this home was designed to meet both your functional needs and aesthetic desires.

8003 Manor House Way | MLS# 7690897

This single family home located at 8003 Manor House Way, Colorado Springs, CO 80908 is currently listed for sale with an asking price of $587,935. This property was built in 2026 and has 3 bedrooms with 2256 sq. ft. Manor House Way is located in the Sterling Ranch subdivision. Search Sterling Ranch real estate on www.lisaminder.com today.

Property Features

Property Type: Residential - Single Family
Cooling: Ceiling Fan(s), Central Air
Fenced: Yes
Fireplaces: Gas, Main Level
Garage: 2 car attached
Heating: Forced Air, Natural Gas
Lot Size: 0.09 Acres
Roof Type: Composite Shingle
Stories: 2.0
Taxes: $5,800
Year Built: 2026

Feature Descriptions

Appliances: 220v in Kitchen, Dishwasher, Disposal, Dryer, Gas in Kitchen, Microwave Oven, Oven, Range, Refrigerator, Self Cleaning Oven, Washer
Association Fee: $95.00 (Quarterly)
Basement/Foundation: Crawl Space
Builder Model: C302C
Builder Name: Owner
Community Features: Hiking or Biking Trails, Parks or Open Space, Playground Area
Days on Site: 5
Existing Utilities: Cable Available, Electricity Connected, Natural Gas Connected, See Prop Desc Remarks
Exterior: Fiber Cement
Fence: Rear
Floor Plan: 2 Story
Floors: Carpet, Ceramic Tile, Vinyl/Linoleum
Garage Amenities: Garage Door Opener
Garage Type: Attached
Interior: 6-Panel Doors,9Ft + Ceilings
Laundry Facilities: Electric Hook-up, Upper
Lot: Level
Square Footage: 949 (Main)
Utilities: Cable Available, Electricity Connected, Natural Gas Connected, See Prop Desc Remarks
Water: Assoc/Distr

Listed By / Shown By

Listed By

Agency Name: American Legend Homes Brokerage LLC
Agency Phone: 972-410-5713

Shown By

Agent Name: Lisa Minder
Agent Phone: (480) 334-9151
Agency Title: The Cutting Edge, Realtors

IDX logo

Estimate Your Payment

Estimated Payment

$ 3,550.83 per month $2,896.01 Principal & Interest $483.33 Property Tax $171.48 Homeowner's Insurance

Change Payment Information

%
years/fixed
yearly
yearly (est.)
(Payments are an estimate and may vary by lender)

Contact Laura Hemsworth & Lisa Ramsey Today! Phone: (719) 505-5561 Email: Laura@LoansWithMilestone.com

Disclaimer: All information deemed reliable but not guaranteed. All properties are subject to prior sale, change or withdrawal. Neither listing broker(s) or information provider(s) shall be responsible for any typographical errors, misinformation, misprints and shall be held totally harmless. Listing(s) information is provided for consumers personal, non-commercial use and may not be used for any purpose other than to identify prospective properties consumers may be interested in purchasing. Information on this site was last updated 03/02/2026. The listing information on this page last changed on 03/02/2026. The data relating to real estate for sale on this website comes in part from the Internet Data Exchange program of Delta Media Group MLS (last updated Mon 03/02/2026 1:43:19 PM EST) or Metrolist - RECOLORADO by MLSGRID (last updated Mon 03/02/2026 1:34:44 PM EST) or Pikes Peak REALTORR Services Corp (last updated Mon 03/02/2026 1:30:17 PM EST) or Pueblo MLS (last updated Mon 03/02/2026 12:44:34 PM EST). Real estate listings held by brokerage firms other than The Cutting Edge, Realtors may be marked with the Internet Data Exchange logo and detailed information about those properties will include the name of the listing broker(s) when required by the MLS. All rights reserved. PPMLS - The real estate listing information and related content displayed on this site is provided exclusively for consumers™ personal, non-commercial use and may not be used for any purpose other than to identify prospective properties consumers may be interested in purchasing. This information and related content is deemed reliable but is not guaranteed accurate by the Pikes Peak REALTOR® Services Corp.
Privacy Policy / DMCA Notice / ADA Accessibility

Login to My Homefinder

Pixel